Vuokrataan - Espoon Niittyrinne 7
Niittyrinne 7, 02270 Espoo, Yli-Finnoo
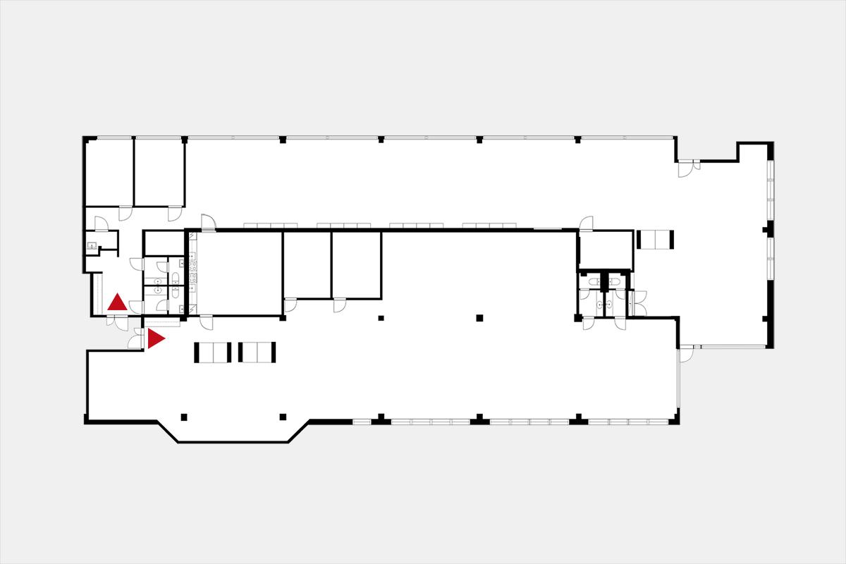
Vuokrataan toisen kerroksen 684m² ilmastoitu toimistotila Suomenojalta. Tilat ovat muunneltavissa tukemaan hyvin monen tyyppistä yritystoimintaa ja muokataan asiakkaan tarpeiden mukaan.
Kiinteistö sijaitsee lähellä Länsiväylää, hyvien julkisten liikkenneyhteyksien varrella.Kiinteistön pihalla on runsaasti pysäköintitilaa.
Kysy lisätietoja tai sovitaan käynti kohteelle jo tänään!
Kiinteistö sijaitsee lähellä Länsiväylää, hyvien julkisten liikkenneyhteyksien varrella.Kiinteistön pihalla on runsaasti pysäköintitilaa.
Kysy lisätietoja tai sovitaan käynti kohteelle jo tänään!
Kohteen tiedot
Pinta-ala:
684 m²
Rakennusvuosi:
1987
Kerros:
2
Yhteyshenkilö:

Mikko Ranta
mikko.ranta@hausala.fi
050 360 6500
mikko.ranta@hausala.fi
050 360 6500

Mika Savikko
mika.savikko@hausala.fi
050 472 7077
mika.savikko@hausala.fi
050 472 7077