Vuokrataan - Helsingin Kaupintie 5
Kaupintie 5, 00440 Helsinki, Lassila
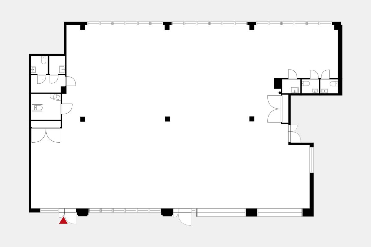
Vuokrataan katutason toimitila Pohjois-Haagan juna-aseman välittömästä läheisyydestä. Tämä avara kokonaisuus sopii liiketilaksi, myymäläksi tai toimistoksi, sen korkeus on 3,2 m. Tila on jaettavissa 172 ja 195 neliön toimitiloihin. Tilassa on kaksi siivouskomeroa ja neljä wc:tä, joista yksi on inva-wc. Ravintolakäyttöön se ei kuitenkaan sovellu.
Kiinteistössä käynnistyy laajamittainen peruskorjaus, joka valmistuu 08/2026. Ylempiin kerroksiin sijoittuu hoivapalveluita ja näihin katutason tiloihin joko toimistoja tai liiketiloja.
Käytännössä kaikki tilat rakennetaan uudestaan, ja mm. talotekniikka uudistetaan nykypäivän vaatimuksia huomioiden (jäähdytys yms.). Tässä vaiheessa on mahdollista vaikuttaa mm. tilan pohjapiirroksiin, jotka voidaan muokata omien tarpeiden mukaan.
Kiinteistöstä löytyy autopaikkoja, pyörävarasto sekä sosiaali- ja pesutilat. Tämä on loistava vaihtoehto toimijalle, joka hakee uutta saneerattua toimitilaa hyvien liikenneyhteyksien varrelta. Ota yhteyttä ja kysy lisätietoja!
Kysy lisätietoja tai sovitaan käynti kohteelle jo tänään!
Kiinteistössä käynnistyy laajamittainen peruskorjaus, joka valmistuu 08/2026. Ylempiin kerroksiin sijoittuu hoivapalveluita ja näihin katutason tiloihin joko toimistoja tai liiketiloja.
Käytännössä kaikki tilat rakennetaan uudestaan, ja mm. talotekniikka uudistetaan nykypäivän vaatimuksia huomioiden (jäähdytys yms.). Tässä vaiheessa on mahdollista vaikuttaa mm. tilan pohjapiirroksiin, jotka voidaan muokata omien tarpeiden mukaan.
Kiinteistöstä löytyy autopaikkoja, pyörävarasto sekä sosiaali- ja pesutilat. Tämä on loistava vaihtoehto toimijalle, joka hakee uutta saneerattua toimitilaa hyvien liikenneyhteyksien varrelta. Ota yhteyttä ja kysy lisätietoja!
Kysy lisätietoja tai sovitaan käynti kohteelle jo tänään!
Kohteen tiedot
Pinta-ala:
172 m² - 367 m²
Kerros:
Katutaso
Yhteyshenkilö:

Mikko Ranta
mikko.ranta@hausala.fi
050 360 6500
mikko.ranta@hausala.fi
050 360 6500

Mika Savikko
mika.savikko@hausala.fi
050 472 7077
mika.savikko@hausala.fi
050 472 7077