Vuokrataan - Tampereen Hatanpään valtatie 18
Hatanpään valtatie 18, 33100 Tampere, Ratina
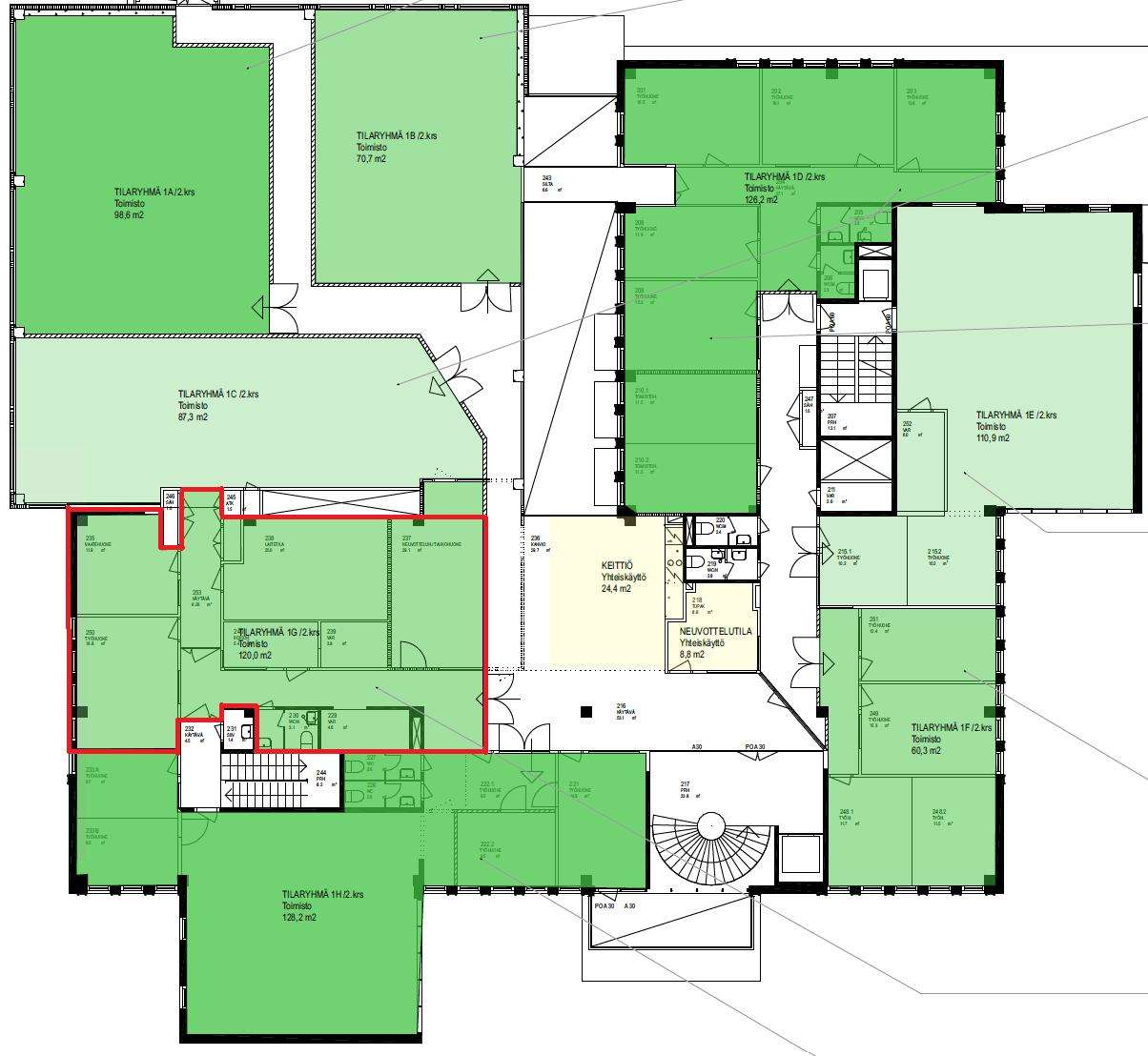
Vuokrataan siisti 120m² toimistotila kiinteistön 2. kerroksesta. Tiloissa paljon eri kokoisia huoneita, mutta ne voidaan räätälöidä täysin vuokralaisen tarpeiden mukaan. Käytössä juuri valmistunut uusi ja upea yhteiskeittiö. Oma WC. Voidaan yhdistää viereisen tilan kanssa jolloin kokonais pinta-ala on n. 250m2.
Talo tarjoaa vuokralaisten käyttöön ilmaiseksi 2 kpl neuvotteluhuoneita 1. kerroksesta. Näiden varaus järjestelmän kautta. Kiinteistöllä oma parkkihalli, josta mahdollisuus saada pysäköintioikeuksia. Talon ylimmässä kerroksessa edustavat terassi- ja saunatilat. Kellarista mahdollista vuokrata varastotilaa!
Huom! Kuvat showroomista/mallitoimistosta.
Kysy rohkeasti lisätietoja ja sovitaan käynti kohteella jo tänään!
Talo tarjoaa vuokralaisten käyttöön ilmaiseksi 2 kpl neuvotteluhuoneita 1. kerroksesta. Näiden varaus järjestelmän kautta. Kiinteistöllä oma parkkihalli, josta mahdollisuus saada pysäköintioikeuksia. Talon ylimmässä kerroksessa edustavat terassi- ja saunatilat. Kellarista mahdollista vuokrata varastotilaa!
Huom! Kuvat showroomista/mallitoimistosta.
Kysy rohkeasti lisätietoja ja sovitaan käynti kohteella jo tänään!
Kohteen tiedot
Pinta-ala:
120 m² - 250 m²
Rakennusvuosi:
1978
Kerros:
2
Yhteyshenkilö:

Mikko Ranta
mikko.ranta@hausala.fi
050 360 6500
mikko.ranta@hausala.fi
050 360 6500

Mika Savikko
mika.savikko@hausala.fi
050 472 7077
mika.savikko@hausala.fi
050 472 7077