Vuokrataan - Ahti Business Park
Ahventie 4, 02170 Espoo, Matinkylä
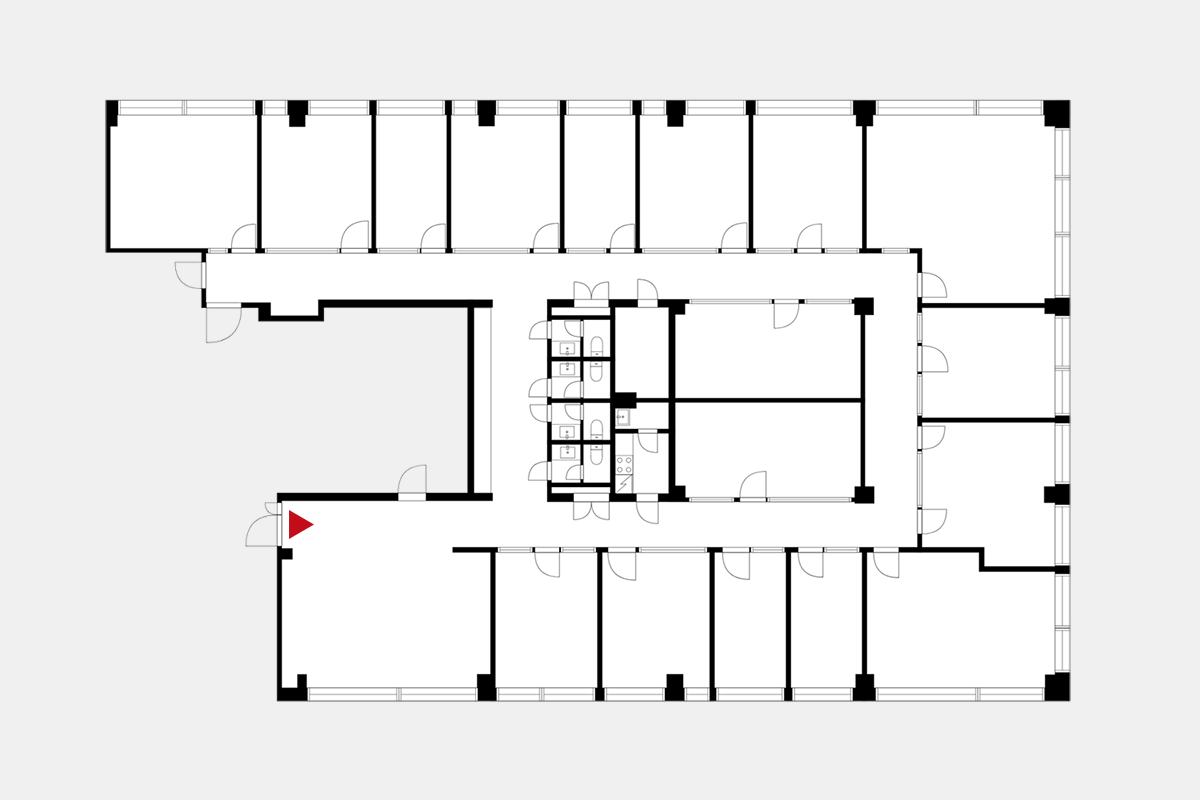
Vuokrataan viidennen kerroksen valoisa 432 m² toimistotila Ahti Business Parkista, Espoon Haukilahdesta.
Ahti Business Park sijaitsee Espoon Haukilahdessa, aivan Länsiväylän varrella. Täällä nautitaan vehreästä lähiympäristöstä ja ikkunoista aukeavista luontomaisemista. Ahdin tavoitteena on tarjota yrityksillensä mahdollisimman viihtyisä työympäristö ja vihreät palveluratkaisut. Kiinteistön kaikki vapaat tilat ovat helposti muunneltavissa käyttäjiensä tarpeiden mukaisesti, mikä mahdollistaa persoonallisten ja kullekin yritykselle sopivien toimitilaratkaisujen luomisen. Sijainti on erinomainen Länsiväylän varrella Matinkylän ja Niittykummun liikenneyhteyksien vieressä.
Kiinteistön palveluihin kuuluu mm.aulapalvelu, lounasravintola sekä Catering- palvelut. Kiinteistön vuokralaisille on tarjolla runsaasti vuokrattavia pysäköintipaikkoja sekä ulkokannella että autohallissa. Vierailijoilla on mahdollisuus pysäköidä autonsa maksuttomasti ulkokannelle ilmoittaessaan autonsa rekisterinumeron Ahdin aulapalveluun.
Ota yhteyttä, käydään kiertämässä kohteen tilat ja suunnitellaan teille sopiva kokonaisuus!
Ahti Business Park sijaitsee Espoon Haukilahdessa, aivan Länsiväylän varrella. Täällä nautitaan vehreästä lähiympäristöstä ja ikkunoista aukeavista luontomaisemista. Ahdin tavoitteena on tarjota yrityksillensä mahdollisimman viihtyisä työympäristö ja vihreät palveluratkaisut. Kiinteistön kaikki vapaat tilat ovat helposti muunneltavissa käyttäjiensä tarpeiden mukaisesti, mikä mahdollistaa persoonallisten ja kullekin yritykselle sopivien toimitilaratkaisujen luomisen. Sijainti on erinomainen Länsiväylän varrella Matinkylän ja Niittykummun liikenneyhteyksien vieressä.
Kiinteistön palveluihin kuuluu mm.aulapalvelu, lounasravintola sekä Catering- palvelut. Kiinteistön vuokralaisille on tarjolla runsaasti vuokrattavia pysäköintipaikkoja sekä ulkokannella että autohallissa. Vierailijoilla on mahdollisuus pysäköidä autonsa maksuttomasti ulkokannelle ilmoittaessaan autonsa rekisterinumeron Ahdin aulapalveluun.
Ota yhteyttä, käydään kiertämässä kohteen tilat ja suunnitellaan teille sopiva kokonaisuus!
Kohteen tiedot
Pinta-ala:
432 m²
Kerros:
5
Yhteyshenkilö:

Mikko Ranta
mikko.ranta@hausala.fi
050 360 6500
mikko.ranta@hausala.fi
050 360 6500

Mika Savikko
mika.savikko@hausala.fi
050 472 7077
mika.savikko@hausala.fi
050 472 7077