Vuokrataan - Helsingin Runeberginkatu 5
Runeberginkatu 5, 00100 Helsinki, Kamppi
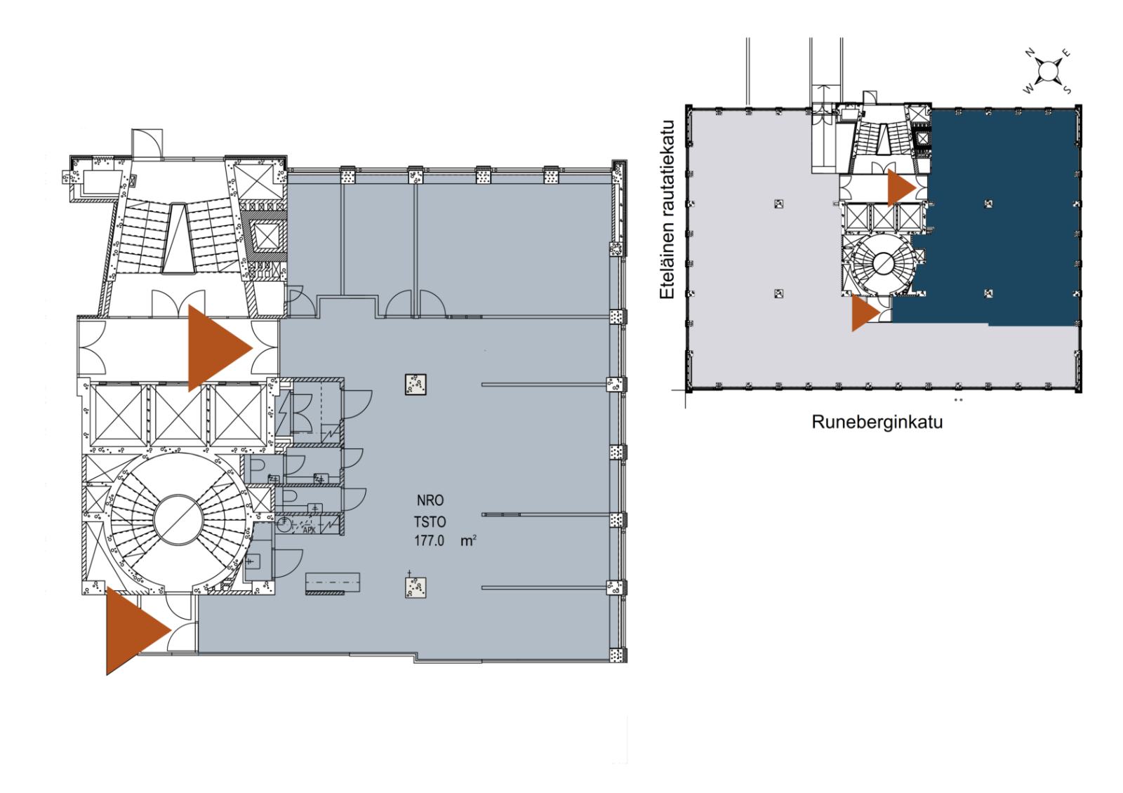
Vuokrataan viidennen kerroksen 177 m² toimisto Kampissa
Hieno ja muuttovalmis toimisto keskellä Kamppia, avotilaa ja huoneita. Toimistokerroksista on hissiyhteys autohalliin. Pyöräilijöille löytyvät pyöräparki ja suihkutilat. Kiinteistössä on jäähdytys.
Kiinteistössä on tehty julkisivun ja yleisten tilojen kunnostustöitä kunnioittaen talon henkeä ja arkkitehtuuria.
Kysy lisätietoja tai sovitaan käynti kohteelle jo tänään!
Hieno ja muuttovalmis toimisto keskellä Kamppia, avotilaa ja huoneita. Toimistokerroksista on hissiyhteys autohalliin. Pyöräilijöille löytyvät pyöräparki ja suihkutilat. Kiinteistössä on jäähdytys.
Kiinteistössä on tehty julkisivun ja yleisten tilojen kunnostustöitä kunnioittaen talon henkeä ja arkkitehtuuria.
Kysy lisätietoja tai sovitaan käynti kohteelle jo tänään!
Kohteen tiedot
Pinta-ala:
177 m²
Rakennusvuosi:
1958
Kerros:
5/11
Yhteyshenkilö:

Mikko Ranta
mikko.ranta@hausala.fi
050 360 6500
mikko.ranta@hausala.fi
050 360 6500

Mika Savikko
mika.savikko@hausala.fi
050 472 7077
mika.savikko@hausala.fi
050 472 7077