Vuokrataan - Tapiolan Länsikulma
Länsituuli 1, 02100 Espoo, Tapiola
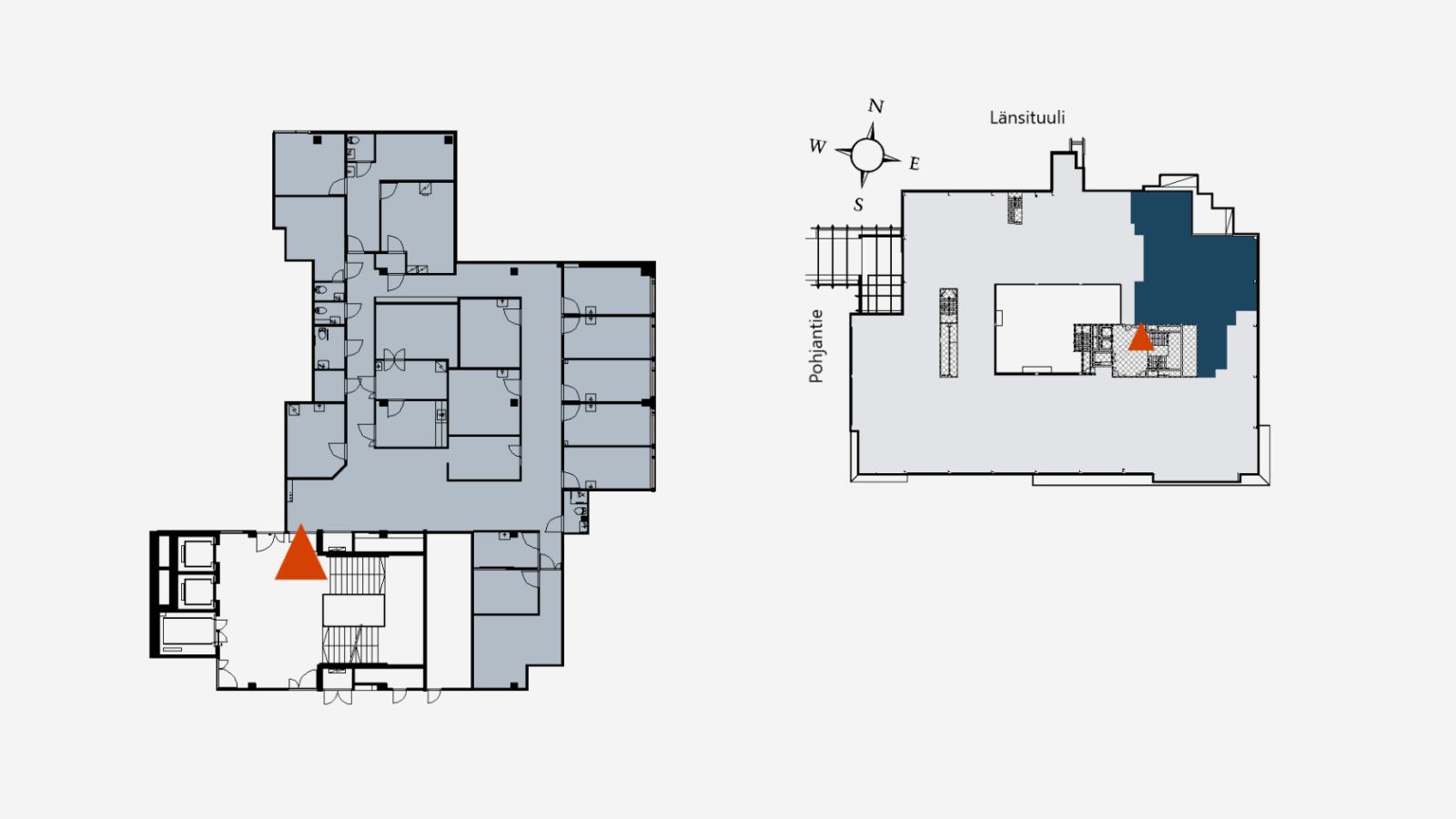
Vuokrataan toisen kerroksen 381 m² toimisto Tapiolassa.
Tila on siistiä ja peruskuntoista toimistotilaa, joka ollut aiemmin lääkäriaseman käytössä. Osassa huoneista on vesipisteet. Vuokrataan esim. väistötilaksi elokuun 2026 loppuun saakka.
Kysy lisätietoja tai sovitaan käynti kohteelle jo tänään!
Tila on siistiä ja peruskuntoista toimistotilaa, joka ollut aiemmin lääkäriaseman käytössä. Osassa huoneista on vesipisteet. Vuokrataan esim. väistötilaksi elokuun 2026 loppuun saakka.
Kysy lisätietoja tai sovitaan käynti kohteelle jo tänään!
Kohteen tiedot
Pinta-ala:
381 m²
Rakennusvuosi:
1984
Kerros:
2/5
Yhteyshenkilö:

Mikko Ranta
mikko.ranta@hausala.fi
050 360 6500
mikko.ranta@hausala.fi
050 360 6500

Mika Savikko
mika.savikko@hausala.fi
050 472 7077
mika.savikko@hausala.fi
050 472 7077