Vuokrataan - Tapiolan Länsikulma
Länsituuli 1, 02100 Espoo, Tapiola
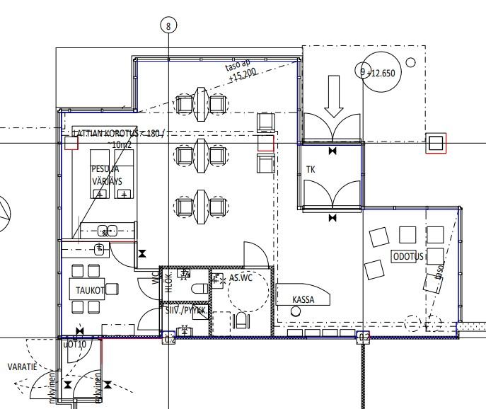
Vuokrataan katutason 117 m² liiketila Tapiolassa.
Tilassa on runsaasti ikkunapinta-alaa ja se on erinomaisesti saavutettavissa. Osassa tilaa on poikkeuksellisen hyvä tilakorkeus. Tilassa on toiminut kampaamo. Tilan sijaitsee keskeisesti Tapiolan keskuksessa. Vuokrataan maaliskuun 2026 loppuun saakka.
Kysy lisätietoja tai sovitaan käynti kohteelle jo tänään!
Tilassa on runsaasti ikkunapinta-alaa ja se on erinomaisesti saavutettavissa. Osassa tilaa on poikkeuksellisen hyvä tilakorkeus. Tilassa on toiminut kampaamo. Tilan sijaitsee keskeisesti Tapiolan keskuksessa. Vuokrataan maaliskuun 2026 loppuun saakka.
Kysy lisätietoja tai sovitaan käynti kohteelle jo tänään!
Kohteen tiedot
Pinta-ala:
117 m²
Rakennusvuosi:
1984
Kerros:
Katutaso
Yhteyshenkilö:

Mikko Ranta
mikko.ranta@hausala.fi
050 360 6500
mikko.ranta@hausala.fi
050 360 6500

Mika Savikko
mika.savikko@hausala.fi
050 472 7077
mika.savikko@hausala.fi
050 472 7077