Vuokrataan - Kylänpääntie 4
Kylänpääntie 4, 01750 Vantaa, Keimola
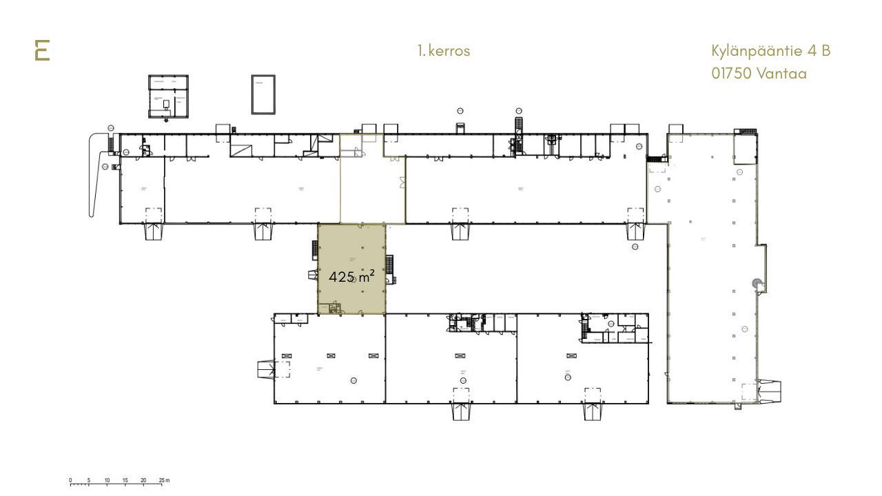
Vuokrattavana 300 m² sisäänajettava tuotanto-/varastotila + toimisto 150 m² Kivistössä. Tilan vapaa korkeus on noin 4 metriä ja tilaan on maantason nosto-ovi.
Betonirunkoinen tuotanto- ja varastokiinteistö on rakennettu vuonna 1969. Kiinteistöä on laajennettu vuonna 1982. Tavarankäsittelyä varten kohteessa on useita lastauslaitureita ja nosto-ovia. Tilat ovat muunneltavissa ja jaettavissa tarpeen mukaan. Piha-alueella on varastointitiloja ja pysäköintitilaa.
Kohde sijaitsee Vantaalla Kivistössä valtatie 3:n varrella. Liikenneyhteydet Hämeenlinnan väylälle ja Kehä III:lle ovat hyvät. Helsinki-Vantaan lentoasema sijaitsee n. 12 km päässä.
Ota yhteyttä, käydään kiertämässä kohteen tilat ja suunnitellaan teille sopiva kokonaisuus.
Betonirunkoinen tuotanto- ja varastokiinteistö on rakennettu vuonna 1969. Kiinteistöä on laajennettu vuonna 1982. Tavarankäsittelyä varten kohteessa on useita lastauslaitureita ja nosto-ovia. Tilat ovat muunneltavissa ja jaettavissa tarpeen mukaan. Piha-alueella on varastointitiloja ja pysäköintitilaa.
Kohde sijaitsee Vantaalla Kivistössä valtatie 3:n varrella. Liikenneyhteydet Hämeenlinnan väylälle ja Kehä III:lle ovat hyvät. Helsinki-Vantaan lentoasema sijaitsee n. 12 km päässä.
Ota yhteyttä, käydään kiertämässä kohteen tilat ja suunnitellaan teille sopiva kokonaisuus.
Kohteen tiedot
Pinta-ala:
450 m²
Rakennusvuosi:
1969
Kerros:
Katutaso
Yhteyshenkilö:

Matti Pöyhiä
matti.poyhia@hausala.fi
040 722 6650
matti.poyhia@hausala.fi
040 722 6650

Mika Savikko
mika.savikko@hausala.fi
050 472 7077
mika.savikko@hausala.fi
050 472 7077