Vuokrataan - Kuussillantie 18
Kuussillantie 18, 01230 Vantaa, Vaarala
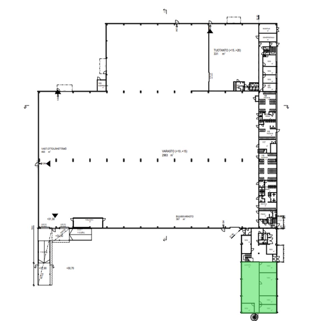
Vuokrataan 183 m² sisään ajettava varastotila Vaaralassa. Tilan vapaa korkeus on noin 2,5 metriä ja sisäänajo on pariovista. Tämä tila on kopitettua tilaa, joten siitä ei saa yhtenäistä isoa varastotilaa. Soveltuu lähinnä kevyeen varastointiin.
Varasto- ja tuotantokiinteistö on valmistunut vuonna 1976 / 1990. Varasto- ja toimistotilat on modernisoitu vuonna 2009. Tilat soveltuvat monenlaiseen toimintaan. Toimivat lastaus- ja purkumahdollisuudet useiden lastauslaitureiden, nosto-ovien ja ramppien kautta mahdollistavat tehokkaan toiminnan. Isolla piha-alueella on mahdollista varastoida tavaraa pihavarastohallissa sekä pihakatoksessa.
Kiinteistön sijainti on logistisesti erinomainen Vantaalla Vaaralan teollisuusalueella Kehä III:n ja Lahden väylän välittömässä läheisyydessä. Helsinki-Vantaan lentoasemalta ja Vuosaaren satamasta on hyvät yhteydet kiinteistölle.
Ota yhteyttä, käydään kiertämässä kohteen tilat ja suunnitellaan teille sopiva kokonaisuus.
Varasto- ja tuotantokiinteistö on valmistunut vuonna 1976 / 1990. Varasto- ja toimistotilat on modernisoitu vuonna 2009. Tilat soveltuvat monenlaiseen toimintaan. Toimivat lastaus- ja purkumahdollisuudet useiden lastauslaitureiden, nosto-ovien ja ramppien kautta mahdollistavat tehokkaan toiminnan. Isolla piha-alueella on mahdollista varastoida tavaraa pihavarastohallissa sekä pihakatoksessa.
Kiinteistön sijainti on logistisesti erinomainen Vantaalla Vaaralan teollisuusalueella Kehä III:n ja Lahden väylän välittömässä läheisyydessä. Helsinki-Vantaan lentoasemalta ja Vuosaaren satamasta on hyvät yhteydet kiinteistölle.
Ota yhteyttä, käydään kiertämässä kohteen tilat ja suunnitellaan teille sopiva kokonaisuus.
Kohteen tiedot
Pinta-ala:
183 m²
Kerros:
Katutaso
Yhteyshenkilö:

Matti Pöyhiä
matti.poyhia@hausala.fi
040 722 6650
matti.poyhia@hausala.fi
040 722 6650

Mika Savikko
mika.savikko@hausala.fi
050 472 7077
mika.savikko@hausala.fi
050 472 7077