Vuokrataan - Rydönnotko 1
Rydönnotko 1, 20360 Turku, Urusvuori
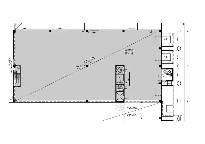
Vuokrattavana Turun Urusvuoressa sijaitsevasta varastokiinteistöstä 869 m² varastotila. Tilan vapaa korkeus on 3 metriä ja lattian kantavuus on 1000 kg/m². Tilassa on kolme lastaustaskua. Tavaraliikenne toimii lastaustaskujen ja laiturin kautta, tilaan ei ole sisäänajomahdollisuutta. Tilassa on omat WC-tilat.
Turun Urusvuoressa sijaitsevaan varasto- ja logistiikkakiinteistöön kuuluu kolme rakennusta: varasto- ja toimistorakennus, maatalous- ja konevarasto ja kiinteistön oma lämpökeskusrakennus. Tontilla sijaitsee myös kolme kevytrakenteista varastohallia. Kohde on muunneltavissa erilaisiin varastointitarkoituksiin. Piha- ja liikennealueet asfaltoituja. Aidattu tonttialue, kaukolämpö, runsaasti lastauslaitureita.
Lentokentälle on matkaa muutama kilometri ja Helsingintielle sekä muualle Suomeen liittymät sujuvasti. Turun ja Naantalin satamat ovat lyhyen matkan päässä.
Ota yhteyttä, käydään kiertämässä kohteen tilat ja suunnitellaan teille sopiva kokonaisuus.
Turun Urusvuoressa sijaitsevaan varasto- ja logistiikkakiinteistöön kuuluu kolme rakennusta: varasto- ja toimistorakennus, maatalous- ja konevarasto ja kiinteistön oma lämpökeskusrakennus. Tontilla sijaitsee myös kolme kevytrakenteista varastohallia. Kohde on muunneltavissa erilaisiin varastointitarkoituksiin. Piha- ja liikennealueet asfaltoituja. Aidattu tonttialue, kaukolämpö, runsaasti lastauslaitureita.
Lentokentälle on matkaa muutama kilometri ja Helsingintielle sekä muualle Suomeen liittymät sujuvasti. Turun ja Naantalin satamat ovat lyhyen matkan päässä.
Ota yhteyttä, käydään kiertämässä kohteen tilat ja suunnitellaan teille sopiva kokonaisuus.
Kohteen tiedot
Pinta-ala:
869 m²
Hinta-arvio:
7 - 11 €/m²
(6 083 - 9 559 €/kk)
Rakennusvuosi:
1982
Kerros:
1
Tilan ominaisuudet:
- Heti vapaa
- Nosto-ovi
- Sosiaalitila
- Tila muokattavissa
- WC, oma
Kiinteistön palvelut:
- Asiakaspysäköinti
Yhteyshenkilö:
Mikko Ranta
mikko.ranta@hausala.fi
050 360 6500
mikko.ranta@hausala.fi
050 360 6500
