Vuokrataan - Kuparitalo
Töölönkatu 4, 00100 Helsinki, Etu-Töölö
Tervetuloa Kuparitaloon, yhteen Helsingin arvostetuimmista toimistorakennuksista, jossa historia, arkkitehtuuri ja nykyaikaiset toimistotarpeet kohtaavat poikkeuksellisella tavalla.
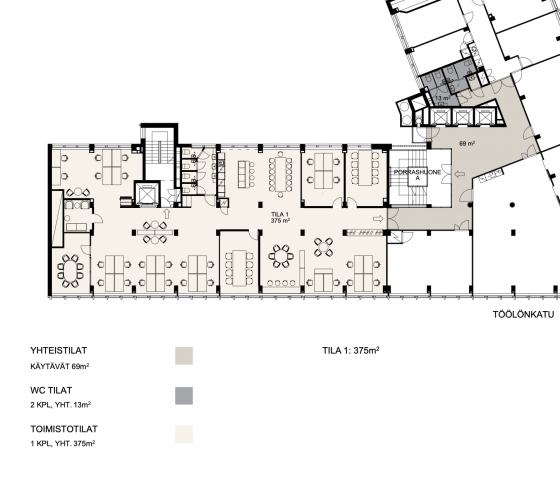
Vuokrattavana on 4. kerroksen tyylikäs, 370 m² toimistotila Helsingin Etu-Töölöstä. Tila on heti vapaa uudelle käyttäjälle. Tässä tilassa yhdistyvät tehokkuus, edustavuus ja viihtyisyys. Pohjaratkaisu on joustava ja tilaa voidaan muokata vuokralaisen tarpeiden mukaan esimerkiksi avotoimistoksi, työhuoneiksi tai kokoustiloiksi. Lisäksi tilojen sisustukseen on tarjolla kolme tarkoin kuratoitua sisustusteemaa:
Philip, Klassinen New York -henkinen kokonaisuus
Märta, Raikas ja linjakas funktionalismi
Arne, Skandinaavista 50-luvun estetiikkaa
Nämä teemat mahdollistavat tilaratkaisun, joka tukee juuri sinun yrityksesi brändiä, kulttuuria ja työnteon tapoja. Kuparitalossa vuokralaisia palvelevat kattavat ja laadukkaat lisäpalvelut. Kaikki tarvittava sujuvaan ja tehokkaaseen työskentelyyn on saman katon alla. Huom! Osassa kuvista saatettu käyttää virtuaalistailausta.
Rakennuksesta löytyy:
Aulapalvelu, joka toivottaa vieraat tyylikkäästi tervetulleiksi
Lounasravintola, jossa voi nauttia maittavan aterian työpäivän lomassa
Kuntosali, joka tuo hyvinvointia arjen keskelle
Monipuoliset neuvottelu- ja edustustilat, jotka taipuvat erilaisiin tilaisuuksiin ja kokouksiin
Historiaa ja modernia eleganssia
Vuonna 1957 Outokumpu Oy:n pääkonttoriksi valmistunut Kuparitalo edustaa aikakautensa arkkitehtuuria parhaimmillaan. Rakennuksen alkuperäinen arvokkuus ja yksityiskohdat, kuten kupariset julkisivut ja sisätilojen harkitut detaljit on säilytetty ja yhdistetty huolellisesti nykyaikaisiin toimistoratkaisuihin. Lopputuloksena on toimistokohde, joka huokuu ajattomuutta, laatua ja arvokkuutta.
Keskeinen sijainti Etu-Töölössä
Kuparitalo sijaitsee paraatipaikalla Helsingin Etu-Töölössä, eduskuntatalon ja Kansallismuseon välittömässä läheisyydessä. Alueella yhdistyvät loistavat kulkuyhteydet, kattavat palvelut sekä ainutlaatuinen kulttuuriympäristö. Rautatieasema ja Kampin keskus ovat vain noin 15 minuutin kävelymatkan päässä, ja alueelle on erinomaiset julkiset liikenneyhteydet raitiovaunuilla ja busseilla.
Ota askel kohti uutta työympäristöä, joka tekee vaikutuksen sekä asiakkaisiin että työntekijöihin.
Kuparitalo ei ole vain toimistotila, se on osa yrityksesi identiteettiä.
Ota yhteyttä välitystiimiimme ja sovitaan näyttö kohteelle jo tänään!
Vuokrattavana on 4. kerroksen tyylikäs, 370 m² toimistotila Helsingin Etu-Töölöstä. Tila on heti vapaa uudelle käyttäjälle. Tässä tilassa yhdistyvät tehokkuus, edustavuus ja viihtyisyys. Pohjaratkaisu on joustava ja tilaa voidaan muokata vuokralaisen tarpeiden mukaan esimerkiksi avotoimistoksi, työhuoneiksi tai kokoustiloiksi. Lisäksi tilojen sisustukseen on tarjolla kolme tarkoin kuratoitua sisustusteemaa:
Philip, Klassinen New York -henkinen kokonaisuus
Märta, Raikas ja linjakas funktionalismi
Arne, Skandinaavista 50-luvun estetiikkaa
Nämä teemat mahdollistavat tilaratkaisun, joka tukee juuri sinun yrityksesi brändiä, kulttuuria ja työnteon tapoja. Kuparitalossa vuokralaisia palvelevat kattavat ja laadukkaat lisäpalvelut. Kaikki tarvittava sujuvaan ja tehokkaaseen työskentelyyn on saman katon alla. Huom! Osassa kuvista saatettu käyttää virtuaalistailausta.
Rakennuksesta löytyy:
Aulapalvelu, joka toivottaa vieraat tyylikkäästi tervetulleiksi
Lounasravintola, jossa voi nauttia maittavan aterian työpäivän lomassa
Kuntosali, joka tuo hyvinvointia arjen keskelle
Monipuoliset neuvottelu- ja edustustilat, jotka taipuvat erilaisiin tilaisuuksiin ja kokouksiin
Historiaa ja modernia eleganssia
Vuonna 1957 Outokumpu Oy:n pääkonttoriksi valmistunut Kuparitalo edustaa aikakautensa arkkitehtuuria parhaimmillaan. Rakennuksen alkuperäinen arvokkuus ja yksityiskohdat, kuten kupariset julkisivut ja sisätilojen harkitut detaljit on säilytetty ja yhdistetty huolellisesti nykyaikaisiin toimistoratkaisuihin. Lopputuloksena on toimistokohde, joka huokuu ajattomuutta, laatua ja arvokkuutta.
Keskeinen sijainti Etu-Töölössä
Kuparitalo sijaitsee paraatipaikalla Helsingin Etu-Töölössä, eduskuntatalon ja Kansallismuseon välittömässä läheisyydessä. Alueella yhdistyvät loistavat kulkuyhteydet, kattavat palvelut sekä ainutlaatuinen kulttuuriympäristö. Rautatieasema ja Kampin keskus ovat vain noin 15 minuutin kävelymatkan päässä, ja alueelle on erinomaiset julkiset liikenneyhteydet raitiovaunuilla ja busseilla.
Ota askel kohti uutta työympäristöä, joka tekee vaikutuksen sekä asiakkaisiin että työntekijöihin.
Kuparitalo ei ole vain toimistotila, se on osa yrityksesi identiteettiä.
Ota yhteyttä välitystiimiimme ja sovitaan näyttö kohteelle jo tänään!
Kohteen tiedot
Pinta-ala:
370 m²
Rakennusvuosi:
1957
Kerros:
4
Yhteyshenkilö:

Mikko Ranta
mikko.ranta@hausala.fi
050 360 6500
mikko.ranta@hausala.fi
050 360 6500

Mika Savikko
mika.savikko@hausala.fi
050 472 7077
mika.savikko@hausala.fi
050 472 7077