Vuokrataan - Pohjoisesplanadi 37
Pohjoisesplanadi 37, 00100 Helsinki, Kluuvi
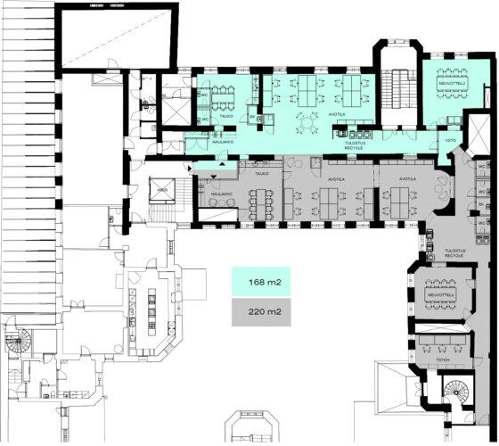
Vuokrataan Helsingin Kluuvista neljännen kerroksen 168 m² toimistotila.
Arvokiinteistö Pohjoisesplanadi 37 Helsingin ydinkeskustassa. Vilkas syke ympäristössä luo puitteet menestyvälle yritykselle. Keskustan monipuoliset palvelut ovat myös lähettyvillä.
Tila on tasokkaasti saneerattu ja sen sijainti on sisäpihan puolella kahvila- ja ravintolakeskittymän yläpuolella.
Tämä ja viereinen tila voidaan yhdistää myös isommaksi 388 m² kokonaisuudeksi.
Julkisen liikenteen yhteydet löytyvät lyhyen kävelymatkan päästä. Autoilijoita palveleva pysäköintihalli sijaitsee P-Kluuvissa.
Kysy rohkeasti lisätietoja ja sovitaan käynti kohteella jo tänään!
Arvokiinteistö Pohjoisesplanadi 37 Helsingin ydinkeskustassa. Vilkas syke ympäristössä luo puitteet menestyvälle yritykselle. Keskustan monipuoliset palvelut ovat myös lähettyvillä.
Tila on tasokkaasti saneerattu ja sen sijainti on sisäpihan puolella kahvila- ja ravintolakeskittymän yläpuolella.
Tämä ja viereinen tila voidaan yhdistää myös isommaksi 388 m² kokonaisuudeksi.
Julkisen liikenteen yhteydet löytyvät lyhyen kävelymatkan päästä. Autoilijoita palveleva pysäköintihalli sijaitsee P-Kluuvissa.
Kysy rohkeasti lisätietoja ja sovitaan käynti kohteella jo tänään!
Kohteen tiedot
Pinta-ala:
168 m²
Rakennusvuosi:
1920
Kerros:
4
Yhteyshenkilö:

Mikko Ranta
mikko.ranta@hausala.fi
050 360 6500
mikko.ranta@hausala.fi
050 360 6500

Mika Savikko
mika.savikko@hausala.fi
050 472 7077
mika.savikko@hausala.fi
050 472 7077