Vuokrataan - KOy Helsingin Pohjoinen Rautatienkatu 25
Pohjoinen Rautatienkatu 25, 00100 Helsinki, Kamppi
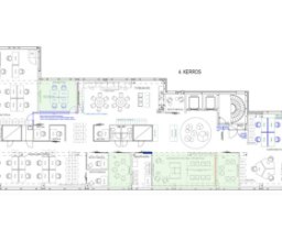
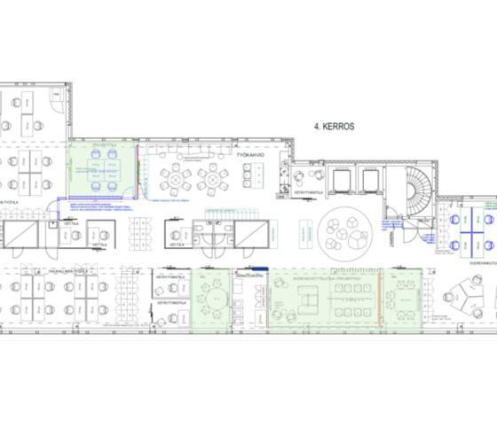
Vuokrataan Helsingin Kampista neljännen kerroksen moderni 636 m² toimistotila.
Selkeätä toimistotilaa Kampin välittömästä läheisyydestä. Tilat ovat helposti muokattavissa vuokralaisen tarpeisiin.
Talossa on hyvät palvelut mm. aulapalvelu, pyöräilijöiden käytössä on tilava pyöräkellari pukuhuoneineen, kiinteistöllä on pysäköintihalli 15 autolle sekä ensimmäisen kerroksen neuvottelu- ja kokoustilat ovat kaikkien vuokralaisten käytössä.
Kiinteistö sijaitsee Metron ja Kampin bussiterminaalin tuntumassa. Baana pyöräilyn pääväylä kulkee kiinteistön läheisyydestä.
Kysy rohkeasti lisätietoja ja sovitaan käynti kohteella jo tänään!
Selkeätä toimistotilaa Kampin välittömästä läheisyydestä. Tilat ovat helposti muokattavissa vuokralaisen tarpeisiin.
Talossa on hyvät palvelut mm. aulapalvelu, pyöräilijöiden käytössä on tilava pyöräkellari pukuhuoneineen, kiinteistöllä on pysäköintihalli 15 autolle sekä ensimmäisen kerroksen neuvottelu- ja kokoustilat ovat kaikkien vuokralaisten käytössä.
Kiinteistö sijaitsee Metron ja Kampin bussiterminaalin tuntumassa. Baana pyöräilyn pääväylä kulkee kiinteistön läheisyydestä.
Kysy rohkeasti lisätietoja ja sovitaan käynti kohteella jo tänään!
Kohteen tiedot
Pinta-ala:
636 m²
Rakennusvuosi:
1999
Kerros:
4
Yhteyshenkilö:

Mikko Ranta
mikko.ranta@hausala.fi
050 360 6500
mikko.ranta@hausala.fi
050 360 6500

Mika Savikko
mika.savikko@hausala.fi
050 472 7077
mika.savikko@hausala.fi
050 472 7077