Vuokrataan - Focus
Paciuksenkatu 21, 00270 Helsinki, Meilahti
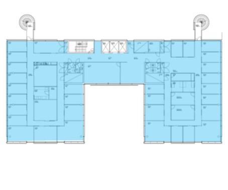
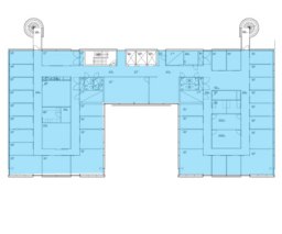
Vuokrataan Helsingin Meilahdesta seitsemännen kerroksen moderni 850 m² toimistotila.
Focus tarjoaa modernin, rauhallisen ja jäähdytetyn työympäristön kattavilla palveluilla. Talosta löytyvät aulapalvelut, edustustilat, lounasravintola, sauna sekä sosiaalitilat. Tila on muokattavissa käyttäjän tarpeiden mukaan
Rakennus on valmistunut 2002. Kiinteistöllä on pysäköintipaikkoja runsaasti pihalla sekä kellarissa kahdessa tasossa.
Julkiset liikenneyhteydet ovat hyvät. Munkkiniemen, Otaniemen ja Huopalahdentien bussi- ja raitiovaunulinjat ovat lähietäisyydellä.
Kysy rohkeasti lisätietoja ja sovitaan käynti kohteella jo tänään!
Focus tarjoaa modernin, rauhallisen ja jäähdytetyn työympäristön kattavilla palveluilla. Talosta löytyvät aulapalvelut, edustustilat, lounasravintola, sauna sekä sosiaalitilat. Tila on muokattavissa käyttäjän tarpeiden mukaan
Rakennus on valmistunut 2002. Kiinteistöllä on pysäköintipaikkoja runsaasti pihalla sekä kellarissa kahdessa tasossa.
Julkiset liikenneyhteydet ovat hyvät. Munkkiniemen, Otaniemen ja Huopalahdentien bussi- ja raitiovaunulinjat ovat lähietäisyydellä.
Kysy rohkeasti lisätietoja ja sovitaan käynti kohteella jo tänään!
Kohteen tiedot
Pinta-ala:
850 m²
Rakennusvuosi:
2002
Kerros:
7
Yhteyshenkilö:

Mikko Ranta
mikko.ranta@hausala.fi
050 360 6500
mikko.ranta@hausala.fi
050 360 6500

Mika Savikko
mika.savikko@hausala.fi
050 472 7077
mika.savikko@hausala.fi
050 472 7077