Vuokrataan - Lintulahdenkulma
Lintulahdenkatu 10, 00500 Helsinki, Sörnäinen
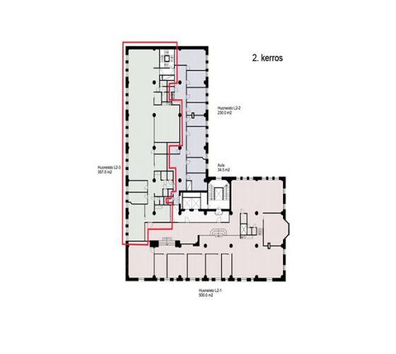
Vuokrataan Helsingin Sörnäisistä toisen kerroksen 357 m² toimistotila.
Sörnäisten maamerkki Lintulahdenkulma.
Arvokiinteistö Lintulahdenkulma on rakennettu 1920-luvulla. Kiinteistö on peruskorjattu toimistotiloiksi -90 luvulla. Tilat on mahdollista remontoida toimintaanne sopiviksi.
Kiinteistössä on cateringpalveluita tarjoava toimija, erikseen vuokrattavia neuvotteluhuoneita sekä ylimmän kerroksen saunatilat.
Kiinteistö sijaitsee keskeisellä paikalla hyvien liikenneyhteyksien varrella.
Kysy rohkeasti lisätietoja ja sovitaan käynti kohteella jo tänään!
Sörnäisten maamerkki Lintulahdenkulma.
Arvokiinteistö Lintulahdenkulma on rakennettu 1920-luvulla. Kiinteistö on peruskorjattu toimistotiloiksi -90 luvulla. Tilat on mahdollista remontoida toimintaanne sopiviksi.
Kiinteistössä on cateringpalveluita tarjoava toimija, erikseen vuokrattavia neuvotteluhuoneita sekä ylimmän kerroksen saunatilat.
Kiinteistö sijaitsee keskeisellä paikalla hyvien liikenneyhteyksien varrella.
Kysy rohkeasti lisätietoja ja sovitaan käynti kohteella jo tänään!
Kohteen tiedot
Pinta-ala:
357 m²
Rakennusvuosi:
1927
Kerros:
2-3
Yhteyshenkilö:

Mikko Ranta
mikko.ranta@hausala.fi
050 360 6500
mikko.ranta@hausala.fi
050 360 6500

Mika Savikko
mika.savikko@hausala.fi
050 472 7077
mika.savikko@hausala.fi
050 472 7077