Vuokrataan - K9
Kaarlenkatu 9-11, 00530 Helsinki, Kallio
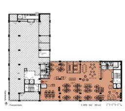
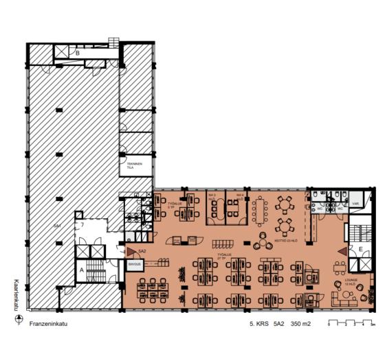
Vuokrataan Helsingin Kalliosta viidennen kerroksen 350 m² toimistotila.
K9 sijaitsee Kaarlenkadun keskellä Kalliossa. Tässä kiinteistössä on aulapalvelun lisäksi tyylikäs lounasravintola, tapahtumatila, kuntosali sekä saunamaailma.
Kiinteistön saavutettavuus julkisella liikenteellä on sujuvaa.
Kysy rohkeasti lisätietoja ja sovitaan käynti kohteella jo tänään!
K9 sijaitsee Kaarlenkadun keskellä Kalliossa. Tässä kiinteistössä on aulapalvelun lisäksi tyylikäs lounasravintola, tapahtumatila, kuntosali sekä saunamaailma.
Kiinteistön saavutettavuus julkisella liikenteellä on sujuvaa.
Kysy rohkeasti lisätietoja ja sovitaan käynti kohteella jo tänään!
Kohteen tiedot
Pinta-ala:
350 m²
Rakennusvuosi:
1970
Kerros:
5
Yhteyshenkilö:

Mikko Ranta
mikko.ranta@hausala.fi
050 360 6500
mikko.ranta@hausala.fi
050 360 6500

Mika Savikko
mika.savikko@hausala.fi
050 472 7077
mika.savikko@hausala.fi
050 472 7077