Vuokrataan - Westport
Itämerenkatu 1, 00180 Helsinki, Ruoholahti
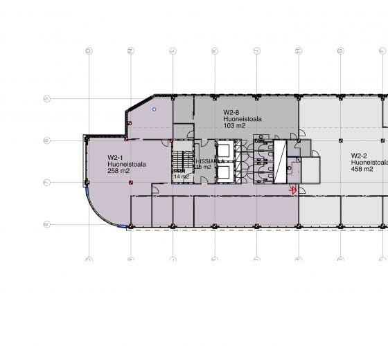
Vuokrataan Helsingin Ruoholahdesta toisen kerroksen 258 m² toimistotila.
Valoisaa ja modernia toimistotilaa Ruoholahden sykkeessä!
Ruoholahden dynaamisesta ilmapiiristä ja erinomaisista yhteyksistä pääsee nyt nauttimaan uudella tasolla. Toimistotila sijaitsee arvostetussa Westport-kiinteistössä. Heti vapaa käyttöön.
Westport on tunnettu raikkaasta ja tyylikkäästä arkkitehtuuristaan sekä tilaratkaisuistaan, jotka mukautuvat monenlaisiin tarpeisiin. Täällä voit toteuttaa avoimen toimiston, tiimityöhön optimoidun ratkaisun tai yhdistää molemmat. Tilan muunneltavuus ja runsas luonnonvalo luovat ympäristön, jossa työskentely on sekä tehokasta että viihtyisää.
Westportin palvelut kruunaavat kokonaisuuden. Aulapalvelu toivottaa vieraat lämpimästi tervetulleiksi, ja rakennuksen kokous- ja edustustilat soveltuvat kaikkeen arkikokouksista hybriditapahtumiin. Päivän lomassa voi pistäytyä talon omassa ravintolassa, jonka lounaat ja kokoustarjoilut tekevät arjesta astetta helpompaa. Työpäivän jälkeen taas rentoutumiseen kutsuu kiinteistön oma kuntosali ja saunatilat.
Sijainti Ruoholahdessa, aivan Länsisataman kupeessa, takaa loistavat kulkuyhteydet niin julkisilla, pyörällä kuin omalla autollakin. Westportiin on helppo tulla ja hyvä jäädä.
Tule tutustumaan ja löydä uusi koti yrityksellesi. Ota yhteyttä jo tänään!
Valoisaa ja modernia toimistotilaa Ruoholahden sykkeessä!
Ruoholahden dynaamisesta ilmapiiristä ja erinomaisista yhteyksistä pääsee nyt nauttimaan uudella tasolla. Toimistotila sijaitsee arvostetussa Westport-kiinteistössä. Heti vapaa käyttöön.
Westport on tunnettu raikkaasta ja tyylikkäästä arkkitehtuuristaan sekä tilaratkaisuistaan, jotka mukautuvat monenlaisiin tarpeisiin. Täällä voit toteuttaa avoimen toimiston, tiimityöhön optimoidun ratkaisun tai yhdistää molemmat. Tilan muunneltavuus ja runsas luonnonvalo luovat ympäristön, jossa työskentely on sekä tehokasta että viihtyisää.
Westportin palvelut kruunaavat kokonaisuuden. Aulapalvelu toivottaa vieraat lämpimästi tervetulleiksi, ja rakennuksen kokous- ja edustustilat soveltuvat kaikkeen arkikokouksista hybriditapahtumiin. Päivän lomassa voi pistäytyä talon omassa ravintolassa, jonka lounaat ja kokoustarjoilut tekevät arjesta astetta helpompaa. Työpäivän jälkeen taas rentoutumiseen kutsuu kiinteistön oma kuntosali ja saunatilat.
Sijainti Ruoholahdessa, aivan Länsisataman kupeessa, takaa loistavat kulkuyhteydet niin julkisilla, pyörällä kuin omalla autollakin. Westportiin on helppo tulla ja hyvä jäädä.
Tule tutustumaan ja löydä uusi koti yrityksellesi. Ota yhteyttä jo tänään!
Kohteen tiedot
Pinta-ala:
258 m²
Rakennusvuosi:
1998
Kerros:
2
Yhteyshenkilö:

Mikko Ranta
mikko.ranta@hausala.fi
050 360 6500
mikko.ranta@hausala.fi
050 360 6500

Mika Savikko
mika.savikko@hausala.fi
050 472 7077
mika.savikko@hausala.fi
050 472 7077