Vuokrataan - Huudi
Huopalahdentie 24, 00350 Helsinki, Munkkivuori
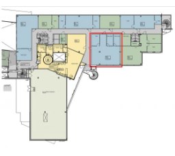
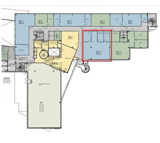
Vuokrataan Helsingin Munkkivuoresta viidennen kerroksen 118 m² toimistotila A5-8.
Huudi on nykyainen Busines Park monipuolisin palveluin.
Talossa on hyvät palvelut mm. aulapalvelu, kuntosali, sekä erilaisia neuvottelu- ja edustustiloja eri tarpeisiin. Talossa toimii myös lounasravintola. Kiinteistöllä on pysäköintipaikkoja kellarissa sekä ulkona.
Kiinteistö sijaitsee Huopalahden liikenneyhteyksien varrella
Kysy rohkeasti lisätietoja ja sovitaan käynti kohteella jo tänään!
Huudi on nykyainen Busines Park monipuolisin palveluin.
Talossa on hyvät palvelut mm. aulapalvelu, kuntosali, sekä erilaisia neuvottelu- ja edustustiloja eri tarpeisiin. Talossa toimii myös lounasravintola. Kiinteistöllä on pysäköintipaikkoja kellarissa sekä ulkona.
Kiinteistö sijaitsee Huopalahden liikenneyhteyksien varrella
Kysy rohkeasti lisätietoja ja sovitaan käynti kohteella jo tänään!
Kohteen tiedot
Pinta-ala:
118 m²
Rakennusvuosi:
2002
Kerros:
5
Yhteyshenkilö:

Mikko Ranta
mikko.ranta@hausala.fi
050 360 6500
mikko.ranta@hausala.fi
050 360 6500

Mika Savikko
mika.savikko@hausala.fi
050 472 7077
mika.savikko@hausala.fi
050 472 7077