Vuokrataan - Sinihelmi
Sinimäentie 8B, 02630 Espoo, Sinimäki
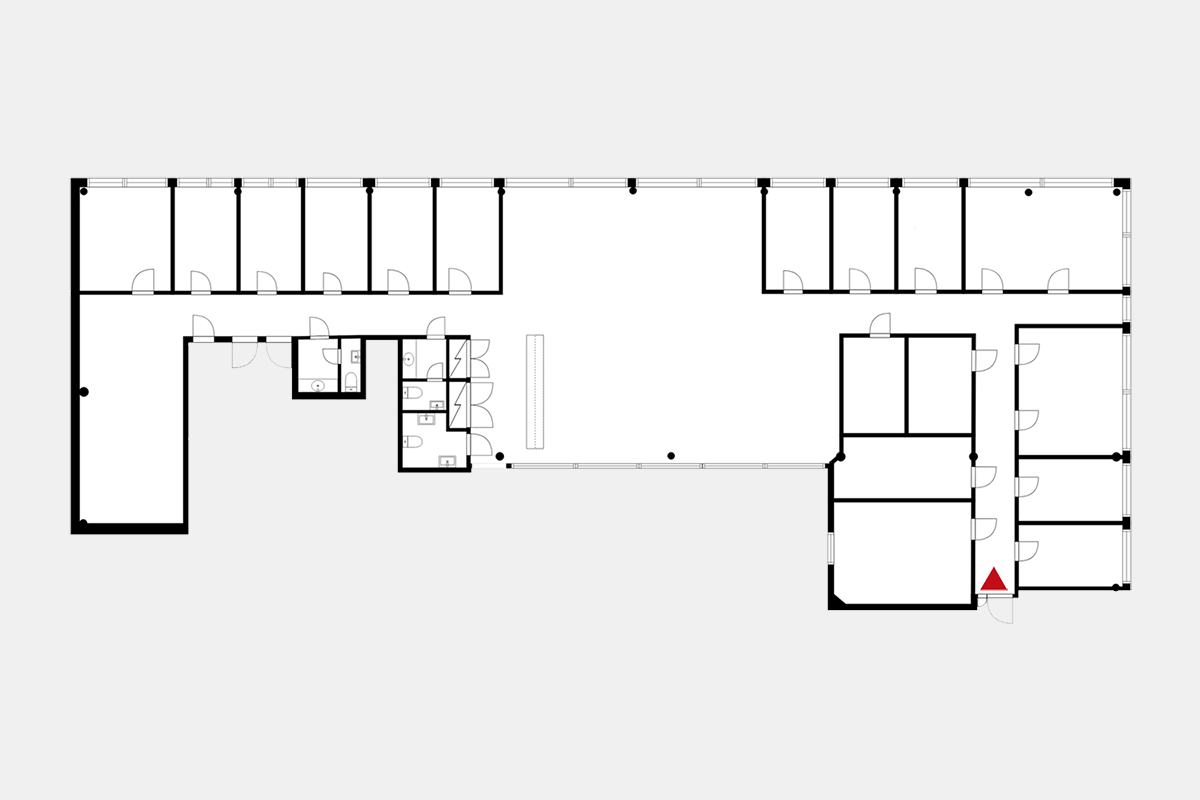
Vuokrataan Espoon Sinimäestä viidennen kerroksen siisti 527 m² toimistotila. Tämä toimisto koostuu erikokoisista toimisto- ja neuvotteluhuoneista, sekä isosta avotilasta. Tilasta löytyy wc-tilat.
Sinihelmi Business House tarjoaa nykyaikaista ja muunneltavaa toimitilaa erinomaisella sijainnilla Espoon Sinimäellä, lähellä Helsingin ja Kehäteiden yhteyksiä. Kuusikerroksinen kiinteistö hurmaa valoisilla tiloillaan, tyylikkäällä lasijulkisivullaan ja rauhallisella ympäristöllään.
Palveluihin kuuluvat aulapalvelu ja toimistopalvelut, vastikään avattu lounasravintola Lounastamo catering-mahdollisuuksineen sekä vuokrattavat neuvottelutilat ja saunatila.
Kysy rohkeasti lisätietoja ja sovitaan käynti kohteella jo tänään!
Sinihelmi Business House tarjoaa nykyaikaista ja muunneltavaa toimitilaa erinomaisella sijainnilla Espoon Sinimäellä, lähellä Helsingin ja Kehäteiden yhteyksiä. Kuusikerroksinen kiinteistö hurmaa valoisilla tiloillaan, tyylikkäällä lasijulkisivullaan ja rauhallisella ympäristöllään.
Palveluihin kuuluvat aulapalvelu ja toimistopalvelut, vastikään avattu lounasravintola Lounastamo catering-mahdollisuuksineen sekä vuokrattavat neuvottelutilat ja saunatila.
Kysy rohkeasti lisätietoja ja sovitaan käynti kohteella jo tänään!
Kohteen tiedot
Pinta-ala:
527 m²
Kerros:
5
Yhteyshenkilö:

Mikko Ranta
mikko.ranta@hausala.fi
050 360 6500
mikko.ranta@hausala.fi
050 360 6500

Mika Savikko
mika.savikko@hausala.fi
050 472 7077
mika.savikko@hausala.fi
050 472 7077