Vuokrataan - Espoon Kutojantie 7
Kutojantie 7, 02630 Espoo, Nihtisilta
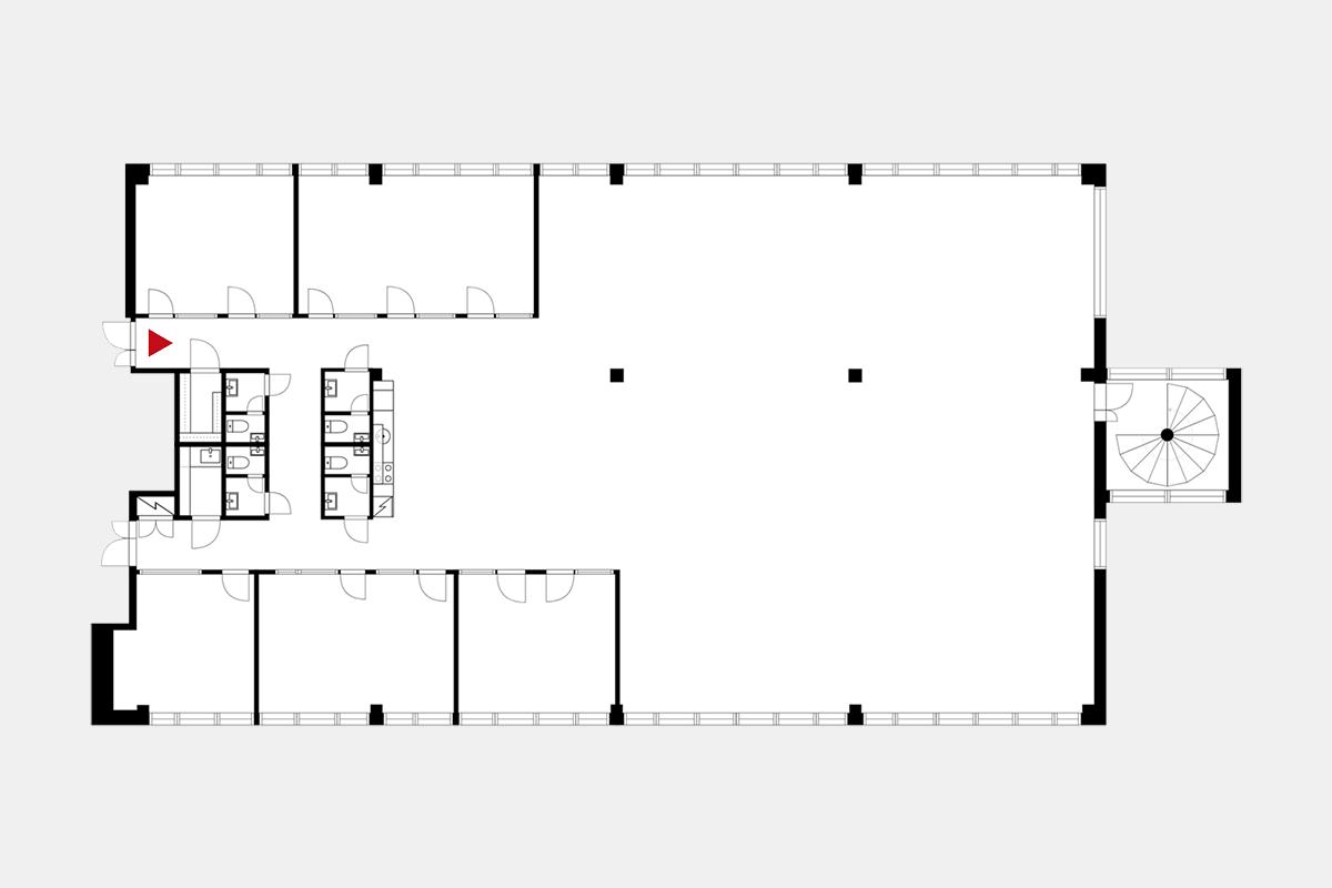
Espoon Kutojantieltä vuokrattavissa siisti ensimmäisen kerroksen 462 m² toimistotila . Tilat koostuvat useista työhuoneista, avotilasta, sekä keittiöalueesta. Tilasta löytyy 4 kpl WC. Kohteessa ilmastointi.
Pysäköintitilaa vuokrattavissa talon pysäköintihallista ja pihalta.
Kysy rohkeasti lisätietoja ja sovitaan käynti kohteella jo tänään!
Pysäköintitilaa vuokrattavissa talon pysäköintihallista ja pihalta.
Kysy rohkeasti lisätietoja ja sovitaan käynti kohteella jo tänään!
Kohteen tiedot
Pinta-ala:
462 m²
Rakennusvuosi:
1991
Kerros:
1
Yhteyshenkilö:

Mikko Ranta
mikko.ranta@hausala.fi
050 360 6500
mikko.ranta@hausala.fi
050 360 6500

Mika Savikko
mika.savikko@hausala.fi
050 472 7077
mika.savikko@hausala.fi
050 472 7077