Vuokrataan - Espoon Kutojantie 11
Kutojantie 11, 02630 Espoo, Nihtisilta
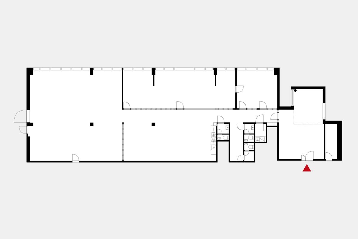
Vuokrataan Espoon Nihtisillasta viidennen eli ylimmän kerroksen siisti 343 m² toimistotila. Tämä tila koostuu erikokoisista toimisto- ja neuvotteluhuoneista, sekä avotilasta. Toimistosta löytyy oma keittiö, sekä 3 kpl wc. Kohde on ilmastoitu.
Kysy rohkeasti lisätietoja ja sovitaan käynti kohteella jo tänään! .
Kysy rohkeasti lisätietoja ja sovitaan käynti kohteella jo tänään! .
Kohteen tiedot
Pinta-ala:
343 m²
Rakennusvuosi:
1991
Kerros:
5
Yhteyshenkilö:

Mikko Ranta
mikko.ranta@hausala.fi
050 360 6500
mikko.ranta@hausala.fi
050 360 6500

Mika Savikko
mika.savikko@hausala.fi
050 472 7077
mika.savikko@hausala.fi
050 472 7077