Vuokrataan - Malmin Kauppatie 12
Malmin Kauppatie 12, 00700 Helsinki, Malmi
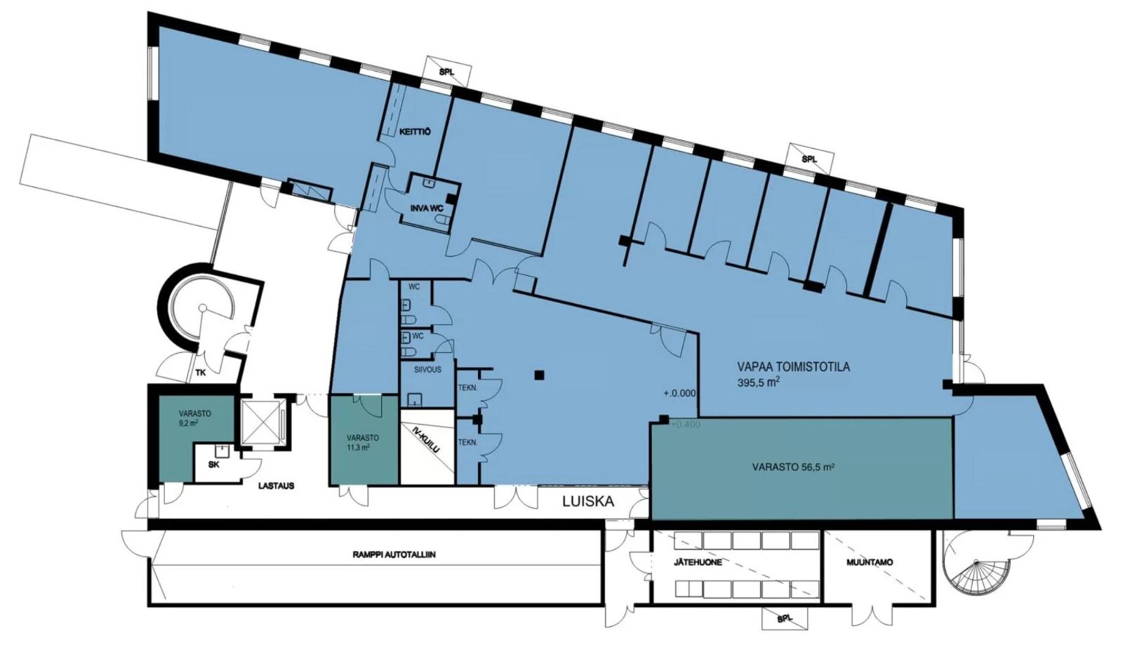
Vuokrataan siisti 1. kerroksen 452 m² toimistotila Malmin ytimestä. Tilassa on koneellinen ilmanvaihto, sekä jäähdytys huonekohtaisilla säätömahdollisuuksilla. Tila on myös jaettavissa.
Kohteesta löytyy vuokrattavia pysäköintipaikkoja hallista sekä ulkoa. Kohde sijaitsee lyhyen kävelymatkan päässä Malmin juna-aseman laitureista sekä alueen monipuolisista palveluista. Kehä I:lle on matkaa ainoastaan noin kilometri, joten kohde on erinomaisesti tavoitettavissa kuljitte sitten idästä tai lännestä. Lähimmälle linja- autopysäkille on matkaa n. 150 m. Pyörällä työmatkaa taittaville löytyy tietenkin suihkutilat.
Kohteesta on vuokralle tarjottavana pienempiäkin toimitiloja ja varastoja, ota yhteyttä ja sovitaan kohteelle kierros vaikka jo tänään!
Kohteesta löytyy vuokrattavia pysäköintipaikkoja hallista sekä ulkoa. Kohde sijaitsee lyhyen kävelymatkan päässä Malmin juna-aseman laitureista sekä alueen monipuolisista palveluista. Kehä I:lle on matkaa ainoastaan noin kilometri, joten kohde on erinomaisesti tavoitettavissa kuljitte sitten idästä tai lännestä. Lähimmälle linja- autopysäkille on matkaa n. 150 m. Pyörällä työmatkaa taittaville löytyy tietenkin suihkutilat.
Kohteesta on vuokralle tarjottavana pienempiäkin toimitiloja ja varastoja, ota yhteyttä ja sovitaan kohteelle kierros vaikka jo tänään!
Kohteen tiedot
Pinta-ala:
395 m² - 452 m²
Rakennusvuosi:
2001
Kerros:
1
Yhteyshenkilö:

Mika Savikko
mika.savikko@hausala.fi
050 472 7077
mika.savikko@hausala.fi
050 472 7077

Matti Pöyhiä
matti.poyhia@hausala.fi
040 722 6650
matti.poyhia@hausala.fi
040 722 6650