Vuokrataan - Vantaan Suokalliontie 9
Suokalliontie 9, 01740 Vantaa, Aviapolis
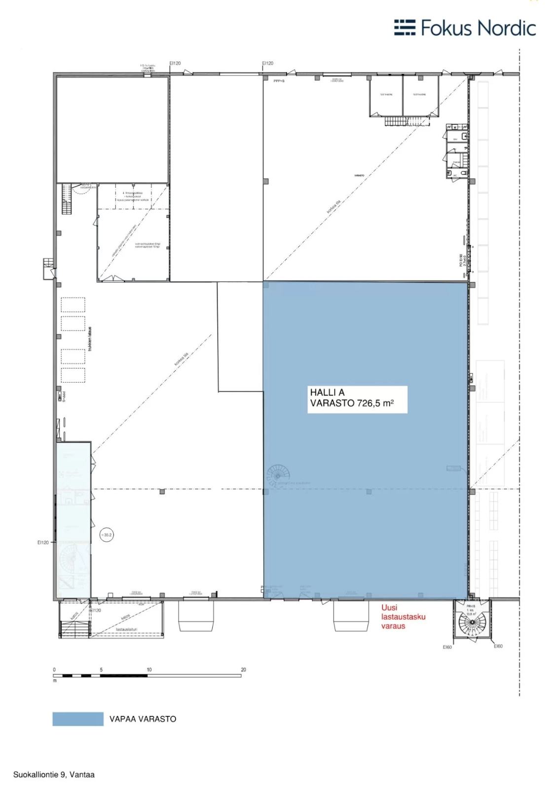
Vuokrataan 726,5 m² varasto Vantaan Aviapoliksesta. Tässä varastotilassa on nosto-ovellinen lastaustasku. Tilaan on mahdollista saada toinen nosto- ovi sekä sisäänajoramppi, kysy välittäjiltämme lisää! Tämän varastotilan lattian kantavuus on 4 000 kg/m² ja vapaa korkeus noin 9 metriä.
Liikenneyhteydet tästä kohteesta ovat erinomaiset joka suuntaan. Alue on haluttu logistiikkatoiminnalle, sillä se on lähellä lentokenttää ja tarjoaa hyvät yhteydet Vuosaaren satamaan ja muualle maahan. Tavaran jakelu myös pääkaupunkiseudulle on todella sujuvaa tästä sijainnista.
Kysy lisätietoja tai sovitaan käynti kohteelle jo tänään!
Liikenneyhteydet tästä kohteesta ovat erinomaiset joka suuntaan. Alue on haluttu logistiikkatoiminnalle, sillä se on lähellä lentokenttää ja tarjoaa hyvät yhteydet Vuosaaren satamaan ja muualle maahan. Tavaran jakelu myös pääkaupunkiseudulle on todella sujuvaa tästä sijainnista.
Kysy lisätietoja tai sovitaan käynti kohteelle jo tänään!
Kohteen tiedot
Pinta-ala:
726,5 m²
Rakennusvuosi:
2016
Kerros:
1
Yhteyshenkilö:

Matti Pöyhiä
matti.poyhia@hausala.fi
040 722 6650
matti.poyhia@hausala.fi
040 722 6650

Mika Savikko
mika.savikko@hausala.fi
050 472 7077
mika.savikko@hausala.fi
050 472 7077