Vuokrataan - Lakalaivan Toimistotalo I
Postitorvenkatu 16, 33840 Tampere, Lahdesjärvi
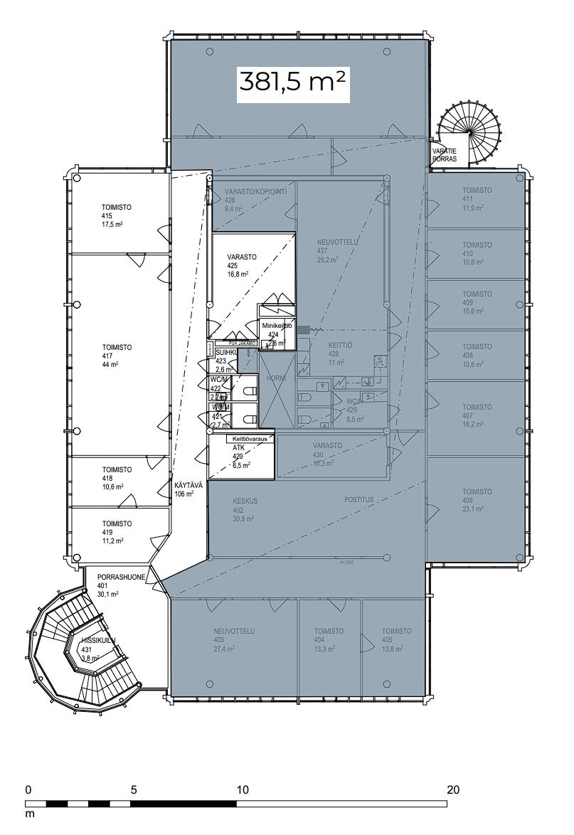
Vuokrataan neljännen kerroksen 381,5 m² siisti ja muuttovalmis toimisto Lahdesjärveltä, Lakalaivan toimistotalosta. Kiinteistössä on valokuituyhteys, tuloilman viilennys sekä koneellinen ilmanvaihto.
Lakalaivan Toimistotalo I on näyttävä toimistorakennus moottoritien varressa, lähellä Ikeaa. Kohteeseen on erinomaiset kulkuyhteydet autolla, polkupyörällä sekä linja- autolla. Pihassa on vuokrattavia autopaikkoja sekä pyöräkatos.
Ota yhteyttä, käydään kiertämässä kohteen tilat ja suunnitellaan teille sopiva kokonaisuus.
Lakalaivan Toimistotalo I on näyttävä toimistorakennus moottoritien varressa, lähellä Ikeaa. Kohteeseen on erinomaiset kulkuyhteydet autolla, polkupyörällä sekä linja- autolla. Pihassa on vuokrattavia autopaikkoja sekä pyöräkatos.
Ota yhteyttä, käydään kiertämässä kohteen tilat ja suunnitellaan teille sopiva kokonaisuus.
Kohteen tiedot
Pinta-ala:
381 m²
Rakennusvuosi:
1990
Kerros:
4
Yhteyshenkilö:

Tero Ala-Hannula
tero.ala-hannula@hausala.fi
040 508 1351
tero.ala-hannula@hausala.fi
040 508 1351

Mika Savikko
mika.savikko@hausala.fi
050 472 7077
mika.savikko@hausala.fi
050 472 7077